お気に入りを解除しました。
NMR北浜(旧:KDX北浜)
物件番号:A106202
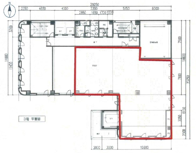
3階86.5坪

- この物件の賃料の価格帯(共益費込)
- この部屋は成約済みです
| 物件名 | NMR北浜(旧:KDX北浜) 【このビルのその他の募集階】 |
||
|---|---|---|---|
| 住所 | 大阪府大阪市中央区平野町2丁目1番14号 淀屋橋・北浜でよく検索されるその他の物件 |
||
| 構造(規模) | 鉄骨造地上10階建 | ||
| 築年月 | 1994年8月31日 | ||
| 坪数 |
86.5坪 |
||
| 階数 | 3階 | ||
| 保証金 | - | ||
| 敷金 | - | ||
| 礼金 | - | ||
| 沿線 最寄駅 |
地下鉄堺筋線 北浜駅 徒歩3分 (北浜駅の賃貸事務所) 地下鉄御堂筋線 淀屋橋駅 徒歩6分 (淀屋橋駅の賃貸事務所) 京阪線(本線・中之島線) 北浜駅 徒歩3分 (北浜駅の賃貸事務所) |
||
| アクセス | 新大阪駅まで電車17分 大阪駅梅田駅まで電車12分 伊丹空港まで車25分 高速入口:環状線高麗橋入口 |
||
| EV基数 | 2基 | 人荷EV基数 | - |
| 空調タイプ | 個別 | ||
| 備考 | ・新耐震基準適合 ・2008年リニューアル済み ・天井高2.5m・OAフロア40mm ・オートロック |
||

KDX北浜ビルは、ブラウンのタイルが落ち着いた印象を与えるハイグレードオフィス。出入口は西側と南側2方向ありメインは西側の正面玄関。共用部もリニューアルされ、清潔感がある落ち着いた雰囲気があります。外観はブルーのガラス張りで、人目を惹くビルとなっています。最寄り駅は堺筋線の北浜駅で徒歩3分の距離に位置しています。
- お電話でお問い合わせ(無料)
-
平日13時までのお問い合わせで
当日に物件をご紹介!
お電話の場合「物件番号:A106202」
をお伝えください
