お気に入りを解除しました。
平野町グランド
物件番号:A106119
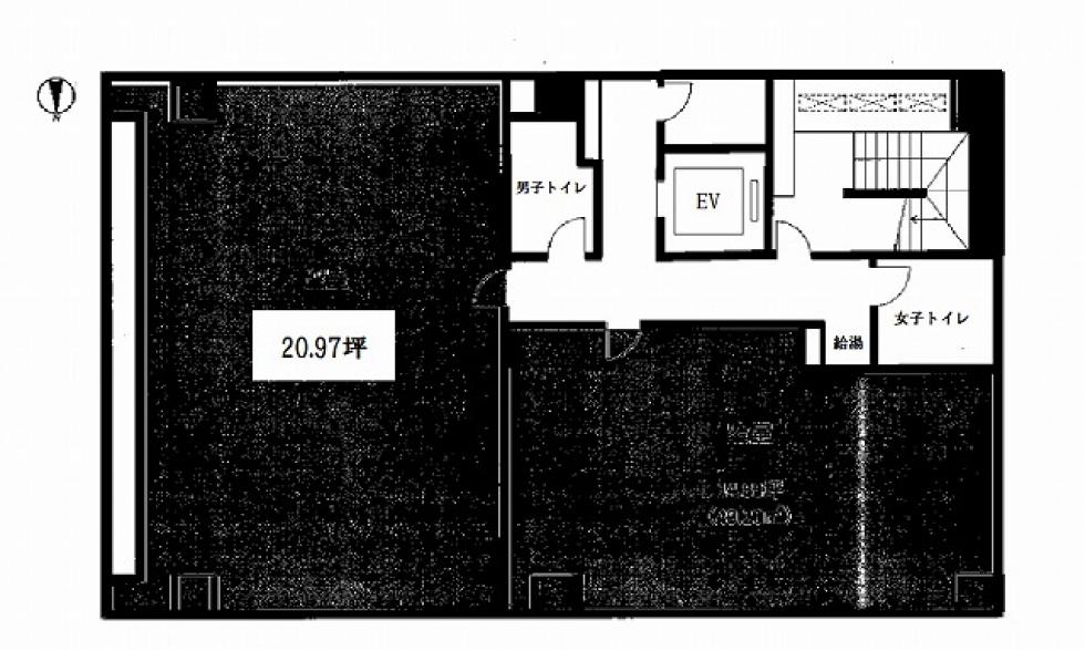
5階20.97坪

- この物件の賃料の価格帯(共益費込)
- 坪@8,001円~@12,000円
| 物件名 | 平野町グランド 【このビルのその他の募集階】 |
||
|---|---|---|---|
| 住所 | 大阪府大阪市中央区平野町1丁目7番14号 淀屋橋・北浜でよく検索されるその他の物件 |
||
| 構造(規模) | 鉄骨鉄筋コンクリート造陸屋根地上9階建 | ||
| 築年月 | 1987年9月1日 | ||
| 坪数 |
20.97坪 |
||
| 階数 | 5階 | ||
| 保証金 | |||
| 敷金 | 賃料の2カ月分 | ||
| 礼金 | 賃料の1カ月分 | ||
| 沿線 最寄駅 |
地下鉄堺筋線 北浜駅 徒歩3分 (北浜駅の賃貸事務所) 京阪線(本線・中之島線) 北浜駅 徒歩5分 (北浜駅の賃貸事務所) 地下鉄堺筋線 堺筋本町駅 徒歩6分 (堺筋本町駅の賃貸事務所) |
||
| アクセス | 新大阪駅まで電車17分 大阪駅梅田駅まで電車12分 関西空港まで電車54分、車49分 伊丹空港まで車25分 高速入口:環状線高麗橋入口 |
||
| EV基数 | 1基 | 人荷EV基数 | - |
| 空調タイプ | 個別 | ||
| 備考 | ・新耐震基準適合 | ||

平野町グランドビルは堺筋から1本東に入った管理良好の美築ビル。最寄り駅は堺筋線の北浜駅徒歩3分です。白いタイル貼りが特徴の正統派オフィスビルという印象を与えます。もちろん管理も良好、周辺には飲食店が多数あるので、ランチに困ることはありません。コスト重視の開設、移転にオススメします。
- お電話でお問い合わせ(無料)
-
平日13時までのお問い合わせで
当日に物件をご紹介!
お電話の場合「物件番号:A106119」
をお伝えください
