お気に入りを解除しました。
京阪神御堂筋
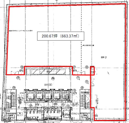
物件番号:A105315
14階200.67坪

- この物件の賃料の価格帯(共益費込)
- 坪@20,001円~@30,000円
| 物件名 | 京阪神御堂筋 【このビルのその他の募集階】 |
||
|---|---|---|---|
| 住所 | 大阪府大阪市中央区道修町3丁目6番1号 淀屋橋・北浜でよく検索されるその他の物件 |
||
| 構造(規模) | 鉄骨造一部鉄筋コンクリート造地上14階地下1階建 | ||
| 築年月 | 2007年3月1日 | ||
| 坪数 |
200.67坪 |
||
| 階数 | 14階 | ||
| 保証金 | |||
| 敷金 | 賃料の12カ月分 | ||
| 礼金 | - | ||
| 沿線 最寄駅 |
地下鉄御堂筋線 淀屋橋駅 徒歩1分 (淀屋橋駅の賃貸事務所) 京阪線(本線・中之島線) 淀屋橋駅 徒歩4分 (淀屋橋駅の賃貸事務所) 地下鉄堺筋線 北浜駅 徒歩6分 (北浜駅の賃貸事務所) |
||
| アクセス | 新大阪駅まで電車10分 大阪駅梅田駅まで電車5分 関西空港まで電車51分、車54分 伊丹空港まで車25分 高速入口:環状線高麗橋入口 |
||
| EV基数 | 5基 | 人荷EV基数 | 1基 |
| 空調タイプ | 個別 | ||
| 備考 | ・駅近・大通り沿い ・角ビル・新耐震基準適合 ・免震構造・エレベーター6基 ・天井高2800mm・OA床下100mm ・地下自走式28台、機械式24台 |
||
京阪神御堂筋ビルは御堂筋沿いで大阪ガス本社ビルの向かいに立地するビルです。最新のオフィス機能にデータセンター機能を融合させた、拡張高い免震オフィスビルです。建物全体を免震装置で支えることで、地震による影響を最小限に抑える中間層免震システムを採用。最寄り駅は御堂筋線の淀屋橋駅で徒歩1分の好立地です。
- お電話でお問い合わせ(無料)
-
平日13時までのお問い合わせで
当日に物件をご紹介!
お電話の場合「物件番号:A105315」
をお伝えください

