お気に入りを解除しました。
ミフネ道修町
物件番号:A105110
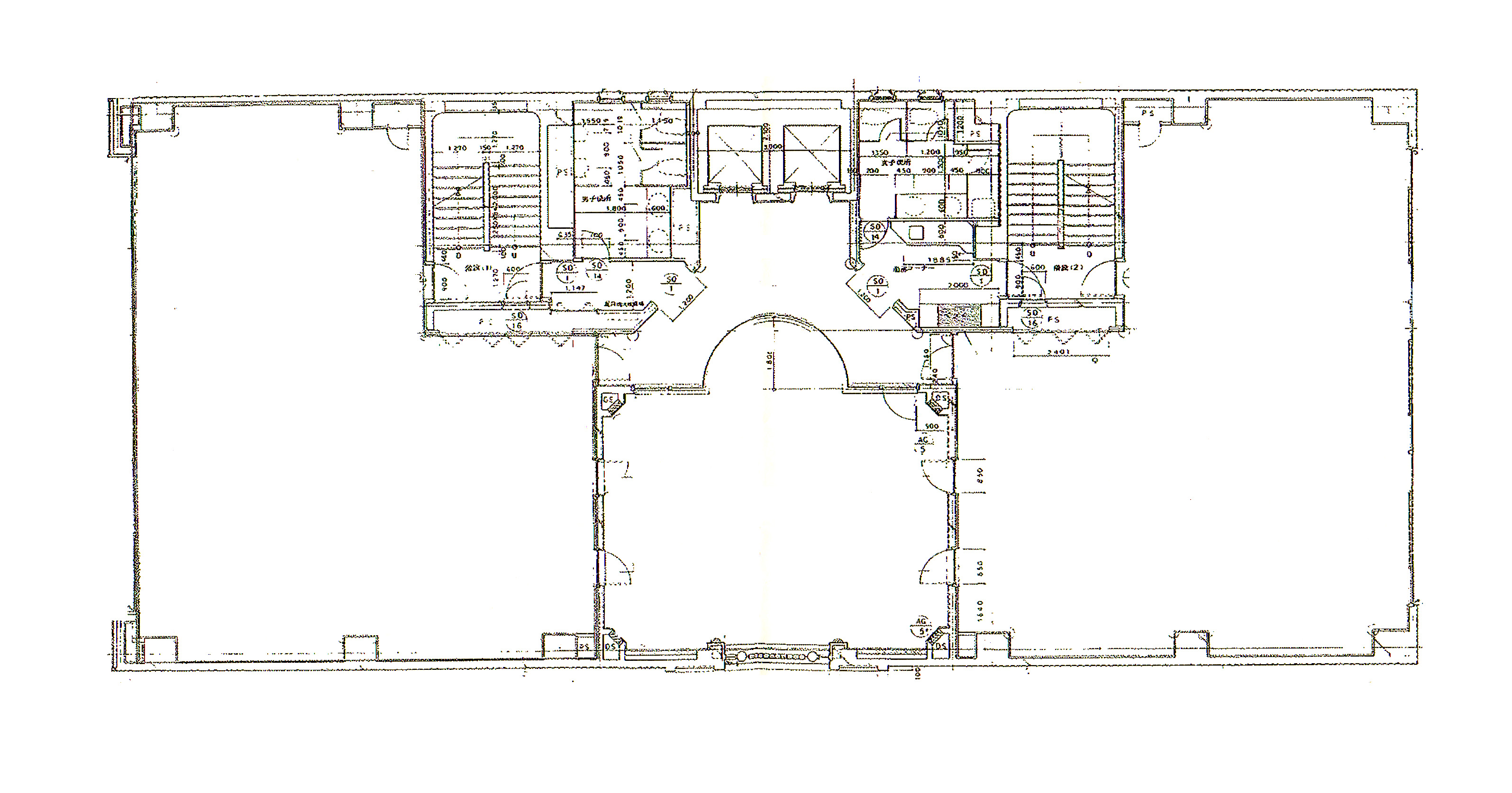
8階41.58坪

- この物件の賃料の価格帯(共益費込)
- この部屋は成約済みです
| 物件名 | ミフネ道修町 【このビルのその他の募集階】 |
||
|---|---|---|---|
| 住所 | 大阪府大阪市中央区道修町1丁目4番6号 淀屋橋・北浜でよく検索されるその他の物件 |
||
| 構造(規模) | 鉄骨鉄筋コンクリート造地上8階地下1階建 | ||
| 築年月 | 1991年4月1日 | ||
| 坪数 |
41.58坪 |
||
| 階数 | 8階 | ||
| 保証金 | - | ||
| 敷金 | - | ||
| 礼金 | - | ||
| 沿線 最寄駅 |
地下鉄堺筋線 北浜駅 徒歩3分 (北浜駅の賃貸事務所) 京阪線(本線・中之島線) 北浜駅 徒歩5分 (北浜駅の賃貸事務所) 地下鉄御堂筋線 淀屋橋駅 徒歩9分 (淀屋橋駅の賃貸事務所) |
||
| アクセス | 新大阪駅まで電車13分 大阪駅梅田駅まで電車8分 関西空港まで電車50分、車45分 伊丹空港まで車23分 高速入口:環状線高麗橋入口 |
||
| EV基数 | 2基 | 人荷EV基数 | - |
| 空調タイプ | 個別 | ||
| 備考 | ・新耐震基準適合・天井高2.6m ・リフレッシュルーム有り・駐輪場有り |
||

ミフネ道修町は存在感がある石貼りの外観に、高級感が漂うエントランスのビルでグレード感を求める方におすすめです。北浜駅からも近く立地優先の開業や移転にも最適です。ビル内にはステンドグラスの高級感あるリラクゼーションスペースがあり喫煙スペースも設けられています。また中庭が設けられており、業務中に憩いの場としてテナント様に喜ばれています。
- お電話でお問い合わせ(無料)
-
平日13時までのお問い合わせで
当日に物件をご紹介!
お電話の場合「物件番号:A105110」
をお伝えください

