お気に入りを解除しました。
平松
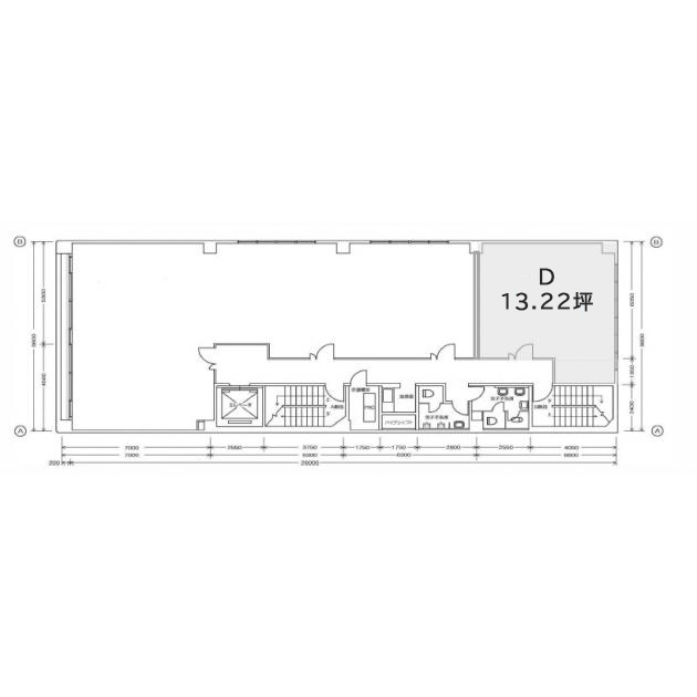
物件番号:A104401
2階13.22坪

- この物件の賃料の価格帯(共益費込)
- 坪@12,001円~@15,000円
| 物件名 | 平松 【このビルのその他の募集階】 |
||
|---|---|---|---|
| 住所 | 大阪府大阪市中央区伏見町4丁目2番6号 淀屋橋・北浜でよく検索されるその他の物件 |
||
| 構造(規模) | 鉄骨鉄筋コンクリート造地上8階地下1階建 | ||
| 築年月 | 1975年7月1日 | ||
| 坪数 |
13.22坪 |
||
| 階数 | 2階 | ||
| 保証金 | |||
| 敷金 | 賃料の12カ月分 | ||
| 礼金 | - | ||
| 沿線 最寄駅 |
地下鉄御堂筋線 淀屋橋駅 徒歩1分 (淀屋橋駅の賃貸事務所) 京阪線(本線・中之島線) 淀屋橋駅 徒歩2分 (淀屋橋駅の賃貸事務所) 地下鉄四つ橋線 肥後橋駅 徒歩4分 (肥後橋駅の賃貸事務所) |
||
| アクセス | 新大阪駅まで電車11分 大阪駅梅田駅まで電車4分 関西空港まで電車51分、車46分 伊丹空港まで車21分 高速入口:環状線信濃橋入口 |
||
| EV基数 | 1基 | 人荷EV基数 | - |
| 空調タイプ | 個別 | ||
| 備考 | ・駅近・2015年空調入替 ・2011年エレベーターリニューアル済み ・貸会議室完備・リフレッシュルーム完備 |
||

平松ビルはオーナーが思いを込めて管理・運営しているのでビジネス環境が整ったビルです。大阪メトロ御堂筋線「淀屋橋駅」の出入口は向かい側の「明治安田生命大阪御堂筋ビル」にあるので、非常に駅から近い立地となっております。また、ビルには貸会議室やリフレッシュルームがあるため、居心地がいい空間を演出しています。
- お電話でお問い合わせ(無料)
-
平日13時までのお問い合わせで
当日に物件をご紹介!
お電話の場合「物件番号:A104401」
をお伝えください
