お気に入りを解除しました。
伏見町KY
物件番号:A104302
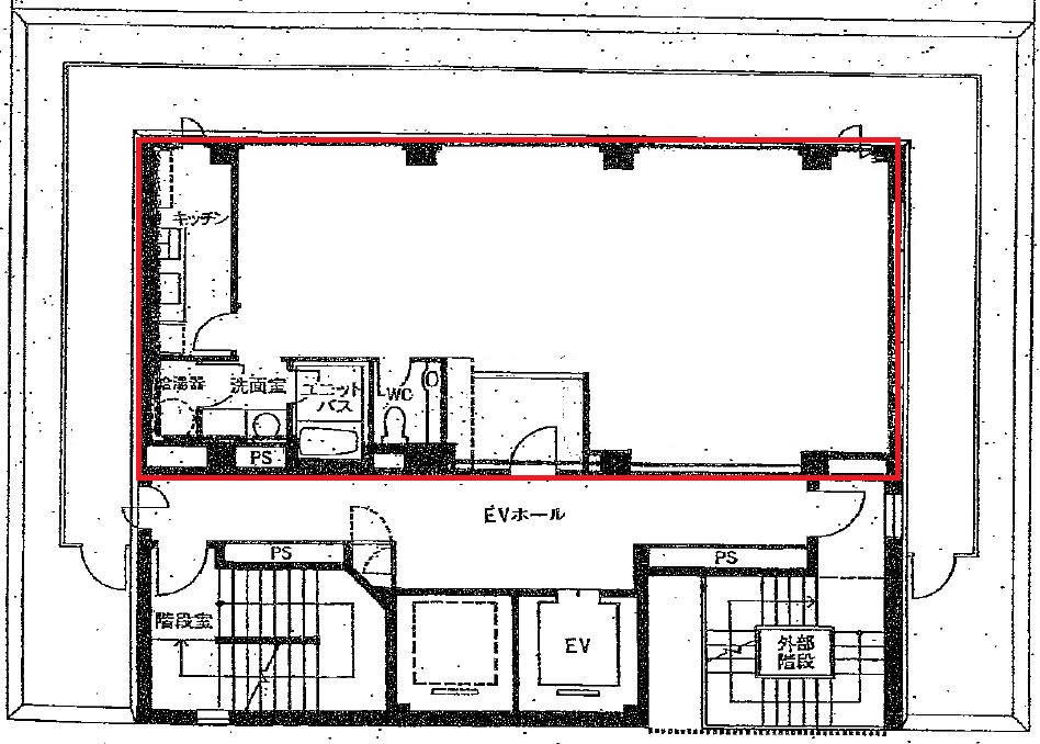
10階25.41坪

- この物件の賃料の価格帯(共益費込)
- この部屋は成約済みです
| 物件名 | 伏見町KY 【このビルのその他の募集階】 |
||
|---|---|---|---|
| 住所 | 大阪府大阪市中央区伏見町3丁目2番6号 淀屋橋・北浜でよく検索されるその他の物件 |
||
| 構造(規模) | 鉄骨鉄筋コンクリート造地上11階地下1階建 | ||
| 築年月 | 1993年5月31日 | ||
| 坪数 |
25.41坪 |
||
| 階数 | 10階 | ||
| 保証金 | - | ||
| 敷金 | - | ||
| 礼金 | - | ||
| 沿線 最寄駅 |
地下鉄御堂筋線 淀屋橋駅 徒歩3分 (淀屋橋駅の賃貸事務所) 地下鉄堺筋線 北浜駅 徒歩4分 (北浜駅の賃貸事務所) 京阪線(本線・中之島線) 淀屋橋駅 徒歩5分 (淀屋橋駅の賃貸事務所) |
||
| アクセス | 新大阪駅まで電車12分 大阪駅梅田駅まで電車6分 関西空港まで電車54分、車52分 伊丹空港まで車22分 高速入口:環状線高麗橋入口 |
||
| EV基数 | 2基 | 人荷EV基数 | - |
| 空調タイプ | 個別 | ||
| 備考 | ・新耐震基準適合 ・天高2.6m ・駐輪場有り |
||

伏見町KYビルは、センスの良いスマートなフォルムのビルです。白を基調とした共用部が上級のオフィス空間を演出しています。ワンフロアーワンテナントを基準として貸出をしております。貸室は綺麗な形をしているので、レイアウトがしやすいです。
- お電話でお問い合わせ(無料)
-
平日13時までのお問い合わせで
当日に物件をご紹介!
お電話の場合「物件番号:A104302」
をお伝えください

