お気に入りを解除しました。
大拓ビル14
物件番号:A104207
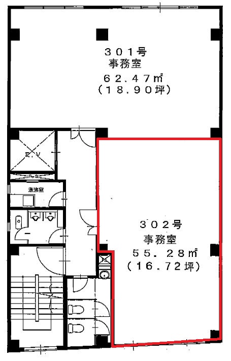
3階16.72坪

- この物件の賃料の価格帯(共益費込)
- この部屋は成約済みです
| 物件名 | 大拓ビル14 【このビルのその他の募集階】 |
||
|---|---|---|---|
| 住所 | 大阪府大阪市中央区伏見町2丁目3番7号 淀屋橋・北浜でよく検索されるその他の物件 |
||
| 構造(規模) | 鉄筋コンクリート造地上7階建 | ||
| 築年月 | 1974年3月15日 | ||
| 坪数 |
16.72坪 |
||
| 階数 | 3階 | ||
| 保証金 | - | ||
| 敷金 | - | ||
| 礼金 | - | ||
| 沿線 最寄駅 |
地下鉄堺筋線 北浜駅 徒歩2分 (北浜駅の賃貸事務所) 京阪線(本線・中之島線) 北浜駅 徒歩5分 (北浜駅の賃貸事務所) 地下鉄御堂筋線 淀屋橋駅 徒歩6分 (淀屋橋駅の賃貸事務所) |
||
| アクセス | 新大阪駅まで電車15分 大阪駅梅田駅まで電車10分 関西空港まで電車56分、車49分 伊丹空港まで車25分 高速入口:環状線高麗橋入口 |
||
| EV基数 | 1基 | 人荷EV基数 | - |
| 空調タイプ | 個別 | ||
| 備考 | ・駅近・2012年共用部リニューアル | ||

大拓ビル14ビルは、大阪メトロ堺筋線「北浜駅」徒歩2分の好立地ビルです。築年数は1974年と古いですが、エントランスや共用部がリニューアル済なので、トイレや水廻りも美しくなっています。10坪~20坪ほどの部屋がメインの貸室となりますので、独立される士業の方や大阪支店開設などに向いています。
- お電話でお問い合わせ(無料)
-
平日13時までのお問い合わせで
当日に物件をご紹介!
お電話の場合「物件番号:A104207」
をお伝えください
