お気に入りを解除しました。
パークコート淀屋橋
物件番号:A103425
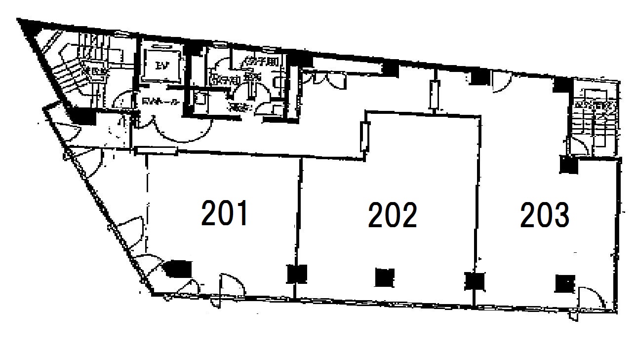
2階19.42坪

- この物件の賃料の価格帯(共益費込)
- この部屋は成約済みです
| 物件名 | パークコート淀屋橋 【このビルのその他の募集階】 |
||
|---|---|---|---|
| 住所 | 大阪府大阪市中央区高麗橋4丁目8番10号 淀屋橋・北浜でよく検索されるその他の物件 |
||
| 構造(規模) | 鉄骨鉄筋コンクリート造地上7階建 | ||
| 築年月 | 1986年12月1日 | ||
| 坪数 |
19.42坪 |
||
| 階数 | 2階 | ||
| 保証金 | - | ||
| 敷金 | - | ||
| 礼金 | - | ||
| 沿線 最寄駅 |
地下鉄四つ橋線 肥後橋駅 徒歩2分 (肥後橋駅の賃貸事務所) 地下鉄御堂筋線 淀屋橋駅 徒歩3分 (淀屋橋駅の賃貸事務所) 京阪線(本線・中之島線) 淀屋橋駅 徒歩6分 (淀屋橋駅の賃貸事務所) |
||
| アクセス | 新大阪駅まで電車13分 大阪駅梅田駅まで電車10分 関西空港まで電車53分、車45分 伊丹空港まで車25分 高速入口:環状線堂島入口 |
||
| EV基数 | 1基 | 人荷EV基数 | - |
| 空調タイプ | 個別 | ||
| 備考 | ・駅近・角ビル ・新耐震基準適合 ・エントランスリニューアル済み |
||

パークコート淀屋橋ビルは、大企業が集まる淀屋橋・肥後橋エリアに立地し、手頃なコスト、広さの区画が確保できる物件です。3線利用可能でアクセス良好、通勤にも便利です。角地で全室採光も良好です。1Fエントランス、各階共用部は大胆にデザインリニューアルされています。
- お電話でお問い合わせ(無料)
-
平日13時までのお問い合わせで
当日に物件をご紹介!
お電話の場合「物件番号:A103425」
をお伝えください
