お気に入りを解除しました。
グローネット淀屋橋
物件番号:A103410
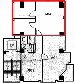
6階11.6坪

- この物件の賃料の価格帯(共益費込)
- 坪@8,001円~@12,000円
| 物件名 | グローネット淀屋橋 【このビルのその他の募集階】 |
||
|---|---|---|---|
| 住所 | 大阪府大阪市中央区高麗橋4丁目5番8号 淀屋橋・北浜でよく検索されるその他の物件 |
||
| 構造(規模) | 鉄骨造地上8階地下1階建 | ||
| 築年月 | 1985年4月1日 | ||
| 坪数 |
11.6坪 |
||
| 階数 | 6階 | ||
| 保証金 | 総額82,200円(@30,000円/坪) | ||
| 敷金 | - | ||
| 礼金 | - | ||
| 沿線 最寄駅 |
地下鉄御堂筋線 淀屋橋駅 徒歩3分 (淀屋橋駅の賃貸事務所) 地下鉄四つ橋線 肥後橋駅 徒歩2分 (肥後橋駅の賃貸事務所) 京阪線(本線・中之島線) 淀屋橋駅 徒歩5分 (淀屋橋駅の賃貸事務所) |
||
| アクセス | 新大阪駅まで電車12分 大阪駅梅田駅まで電車7分 関西空港まで電車53分、車45分 伊丹空港まで車25分 高速入口:環状線堂島入口 |
||
| EV基数 | 1基 | 人荷EV基数 | - |
| 空調タイプ | 個別 | ||
| 備考 | ・新耐震基準適合 ・共用部LED照明化 ・オートロック ・1フロア貸の場合は室内に水廻り有り |
||

グローネット淀屋橋ビルは、御堂筋線淀屋橋駅から徒歩3分、四ツ橋線肥後橋駅から徒歩3分、そのほか京阪線淀屋橋駅も近く、3線とも近くてアクセスが便利なビルです。エントランスがリニューアルされイメージチェンジしました。空中店舗可能。移動や出張の多い会社様に適しています。
- お電話でお問い合わせ(無料)
-
平日13時までのお問い合わせで
当日に物件をご紹介!
お電話の場合「物件番号:A103410」
をお伝えください
