お気に入りを解除しました。
日本生命今橋
物件番号:A102301
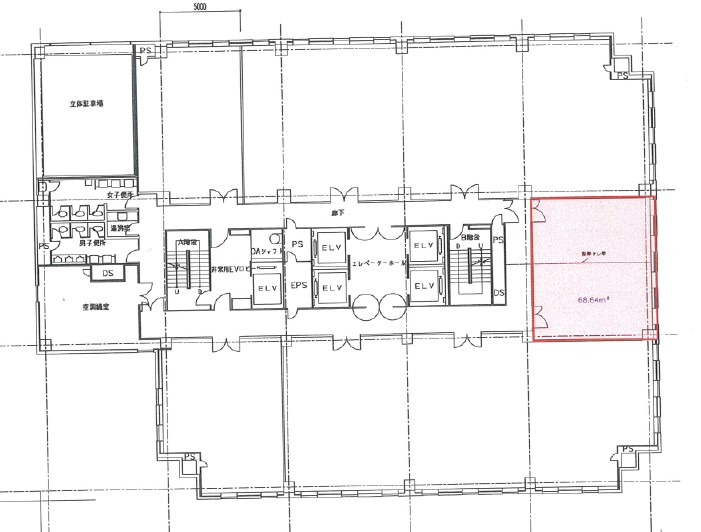
4階20.76坪

- この物件の賃料の価格帯(共益費込)
- 相談
| 物件名 | 日本生命今橋 【このビルのその他の募集階】 |
||
|---|---|---|---|
| 住所 | 大阪府大阪市中央区今橋3丁目1番7号 淀屋橋・北浜でよく検索されるその他の物件 |
||
| 構造(規模) | 鉄骨造地上14階地下2階塔屋2階建 | ||
| 築年月 | 1985年9月1日 | ||
| 坪数 |
20.76坪 |
||
| 階数 | 4階 | ||
| 保証金 | |||
| 敷金 | 相談 | ||
| 礼金 | - | ||
| 沿線 最寄駅 |
地下鉄御堂筋線 淀屋橋駅 徒歩2分 (淀屋橋駅の賃貸事務所) 京阪線(本線・中之島線) 淀屋橋駅 徒歩2分 (淀屋橋駅の賃貸事務所) 地下鉄堺筋線 北浜駅 徒歩4分 (北浜駅の賃貸事務所) |
||
| アクセス | 新大阪駅まで電車12分 大阪駅梅田駅まで電車7分 関西空港まで電車53分、車56分 伊丹空港まで車25分 高速入口:環状線高麗橋入口 |
||
| EV基数 | 4基 | 人荷EV基数 | 1基 |
| 空調タイプ | 個別 | ||
| 備考 | ・駅近・角ビル ・新耐震基準適合・エレベーター5基 ・駐輪場有り・2010年リニューアル済み ・分割対応も可能 |
||
日本生命今橋ビルは規制街区の中で、閑静な雰囲気を感じさせる公開空地があり淀屋橋エリアを代表する大型ビルです。江戸時代に緒方洪庵が開いた「適塾」に隣接。既成街区で適塾と調和させる為ベージュのタイルで外観を落ち着いた印象にし公開空地にも配慮しています。
- お電話でお問い合わせ(無料)
-
平日13時までのお問い合わせで
当日に物件をご紹介!
お電話の場合「物件番号:A102301」
をお伝えください
