お気に入りを解除しました。
淀屋橋ホワイト
物件番号:A101316
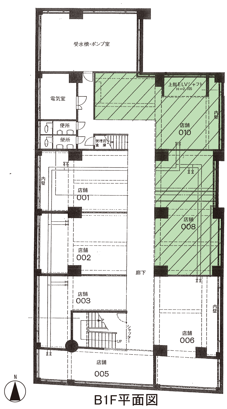
地下1階39.72坪

- この物件の賃料の価格帯(共益費込)
- この部屋は成約済みです
| 物件名 | 淀屋橋ホワイト 【このビルのその他の募集階】 |
||
|---|---|---|---|
| 住所 | 大阪府大阪市中央区北浜3丁目5番19号 淀屋橋・北浜でよく検索されるその他の物件 |
||
| 構造(規模) | 鉄骨鉄筋コンクリート造地上11階地下1階建 | ||
| 築年月 | 1982年2月1日 | ||
| 坪数 |
39.72坪 |
||
| 階数 | 地下1階 | ||
| 保証金 | - | ||
| 敷金 | - | ||
| 礼金 | - | ||
| 沿線 最寄駅 |
地下鉄御堂筋線 淀屋橋駅 徒歩1分 (淀屋橋駅の賃貸事務所) 京阪線(本線・中之島線) 淀屋橋駅 徒歩1分 (淀屋橋駅の賃貸事務所) 地下鉄堺筋線 北浜駅 徒歩5分 (北浜駅の賃貸事務所) |
||
| アクセス | 新大阪駅まで電車9分 大阪駅梅田駅まで電車4分 関西空港まで電車49分、車43分 伊丹空港まで車25分 高速入口:環状線堂島入口 |
||
| EV基数 | 2基 | 人荷EV基数 | - |
| 空調タイプ | 個別 | ||
| 備考 | ・駅近・角ビル ・区分所有の建物 ・天井高2530mm |
||

淀屋橋ホワイトビルは駅近でアクセス至便。淀屋橋駅からも徒歩1分、目の前には淀屋橋駅と北浜駅に連絡する地下道の入口があります。土佐堀通りから少し入った立地にあるコンパクトオフィスです。淀屋橋では希少な区分所有の小区画な貸室がございます。
- お電話でお問い合わせ(無料)
-
平日13時までのお問い合わせで
当日に物件をご紹介!
お電話の場合「物件番号:A101316」
をお伝えください
