お気に入りを解除しました。
北浜小谷
物件番号:A101218
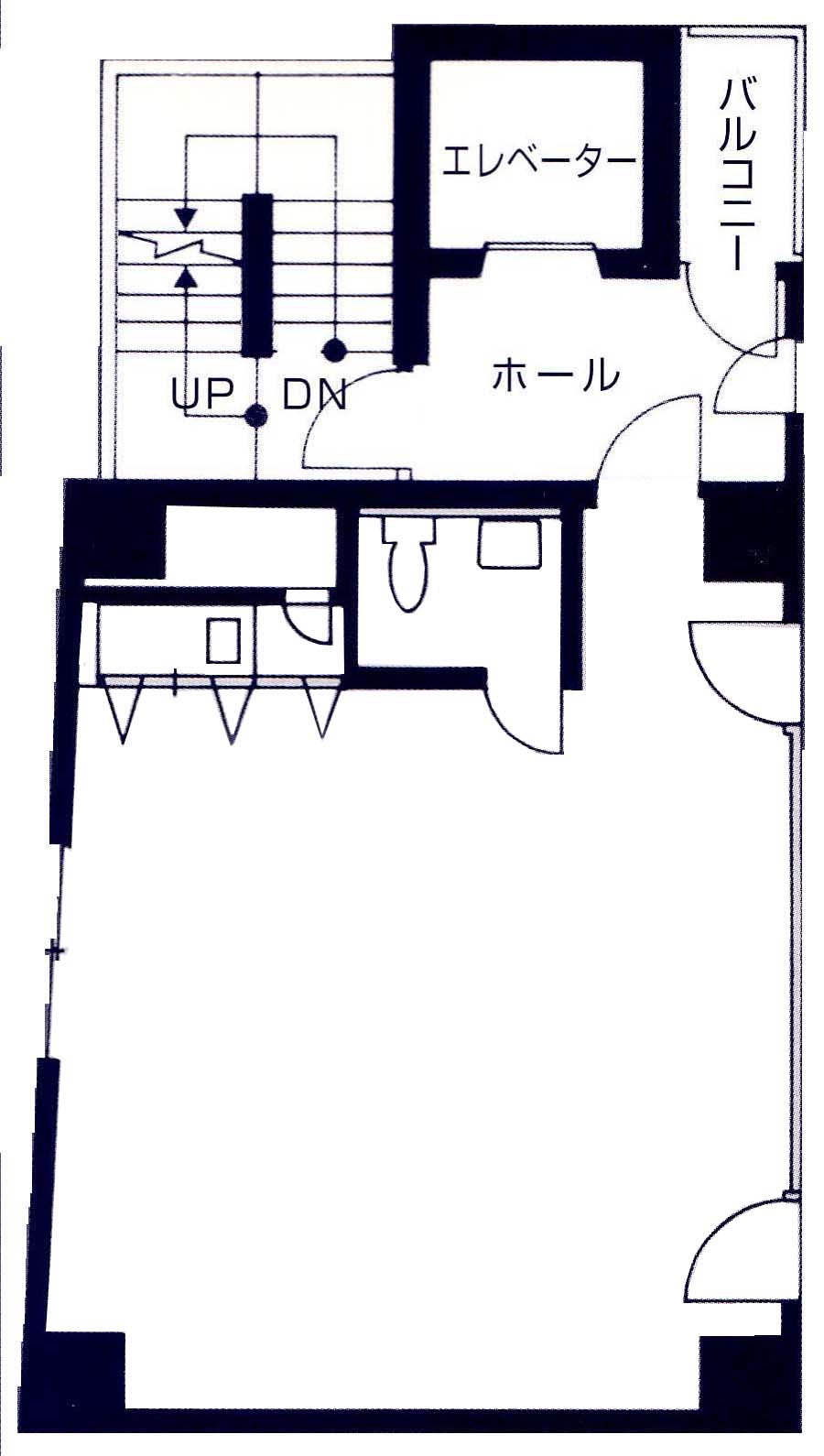
5階15.71坪

- この物件の賃料の価格帯(共益費込)
- 坪@8,001円~@12,000円
| 物件名 | 北浜小谷 【このビルのその他の募集階】 |
||
|---|---|---|---|
| 住所 | 大阪府大阪市中央区北浜2丁目3番14号 淀屋橋・北浜でよく検索されるその他の物件 |
||
| 構造(規模) | 鉄骨鉄筋コンクリート造地上11階建 | ||
| 築年月 | 1987年8月1日 | ||
| 坪数 |
15.71坪 |
||
| 階数 | 5階 | ||
| 保証金 | |||
| 敷金 | 賃料の10カ月分 | ||
| 礼金 | - | ||
| 沿線 最寄駅 |
地下鉄堺筋線 北浜駅 徒歩1分 (北浜駅の賃貸事務所) 京阪線(本線・中之島線) 北浜駅 徒歩1分 (北浜駅の賃貸事務所) 地下鉄御堂筋線 淀屋橋駅 徒歩7分 (淀屋橋駅の賃貸事務所) |
||
| アクセス | 新大阪駅まで電車12分 大阪駅梅田駅まで電車7分 関西空港まで電車59分、車47分 伊丹空港まで車25分 高速入口:環状線高麗橋入口 |
||
| EV基数 | 1基 | 人荷EV基数 | - |
| 空調タイプ | 個別 | ||
| 備考 | ・駅近・大通り沿い ・新耐震基準適合・1フロア1テナント ・オートロック・室内水廻り |
||

北浜小谷ビルは北浜駅徒歩1分で堺筋沿いに位置する、コンパクトでありながらも存在感があるビル。目印は1階にある「大寅蒲鉾」さん、来店されるお客様にも道案内がしやすく、道に迷いわせることはありません。1フロアが20坪ですので、5~6人ぐらいで使用されるお客様にオススメです。
- お電話でお問い合わせ(無料)
-
平日13時までのお問い合わせで
当日に物件をご紹介!
お電話の場合「物件番号:A101218」
をお伝えください

