お気に入りを解除しました。
北浜野村
物件番号:A101118
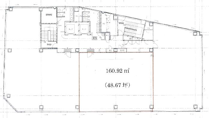
9階48.67坪
- この物件の賃料の価格帯(共益費込)
- この部屋は成約済みです
| 物件名 | 北浜野村 【このビルのその他の募集階】 |
||
|---|---|---|---|
| 住所 | 大阪府大阪市中央区北浜1丁目6番10号 淀屋橋・北浜でよく検索されるその他の物件 |
||
| 構造(規模) | 鉄骨鉄筋コンクリート造地上9階地下2階建 | ||
| 築年月 | 1989年12月1日 | ||
| 坪数 |
48.67坪 |
||
| 階数 | 9階 | ||
| 保証金 | - | ||
| 敷金 | - | ||
| 礼金 | - | ||
| 沿線 最寄駅 |
地下鉄堺筋線 北浜駅 徒歩1分 (北浜駅の賃貸事務所) 京阪線(本線・中之島線) 北浜駅 徒歩1分 (北浜駅の賃貸事務所) 地下鉄御堂筋線 淀屋橋駅 徒歩8分 (淀屋橋駅の賃貸事務所) |
||
| アクセス | 新大阪駅まで電車11分 大阪駅梅田駅まで電車6分 関西空港まで電車48分、車47分 伊丹空港まで車25分 高速入口:環状線高麗橋入口 |
||
| EV基数 | 2基 | 人荷EV基数 | - |
| 空調タイプ | 個別 | ||
| 備考 | ・駅直結・大通り沿い ・新耐震基準適合・天井高2.6m ・2005年全館リニューアル |
||

北浜野村ビルは各線北浜駅に直結するアクセスに優れた物件です。外観・エントランス・エレベーターホールなど重厚感があり格調の高いデザインになっています。また、エントランスのモニュメントが貴賓と風格をかもし出しています。金融街に相応しいビルです。
- お電話でお問い合わせ(無料)
-
平日13時までのお問い合わせで
当日に物件をご紹介!
お電話の場合「物件番号:A101118」
をお伝えください
